CRD Ingénierie Conseil

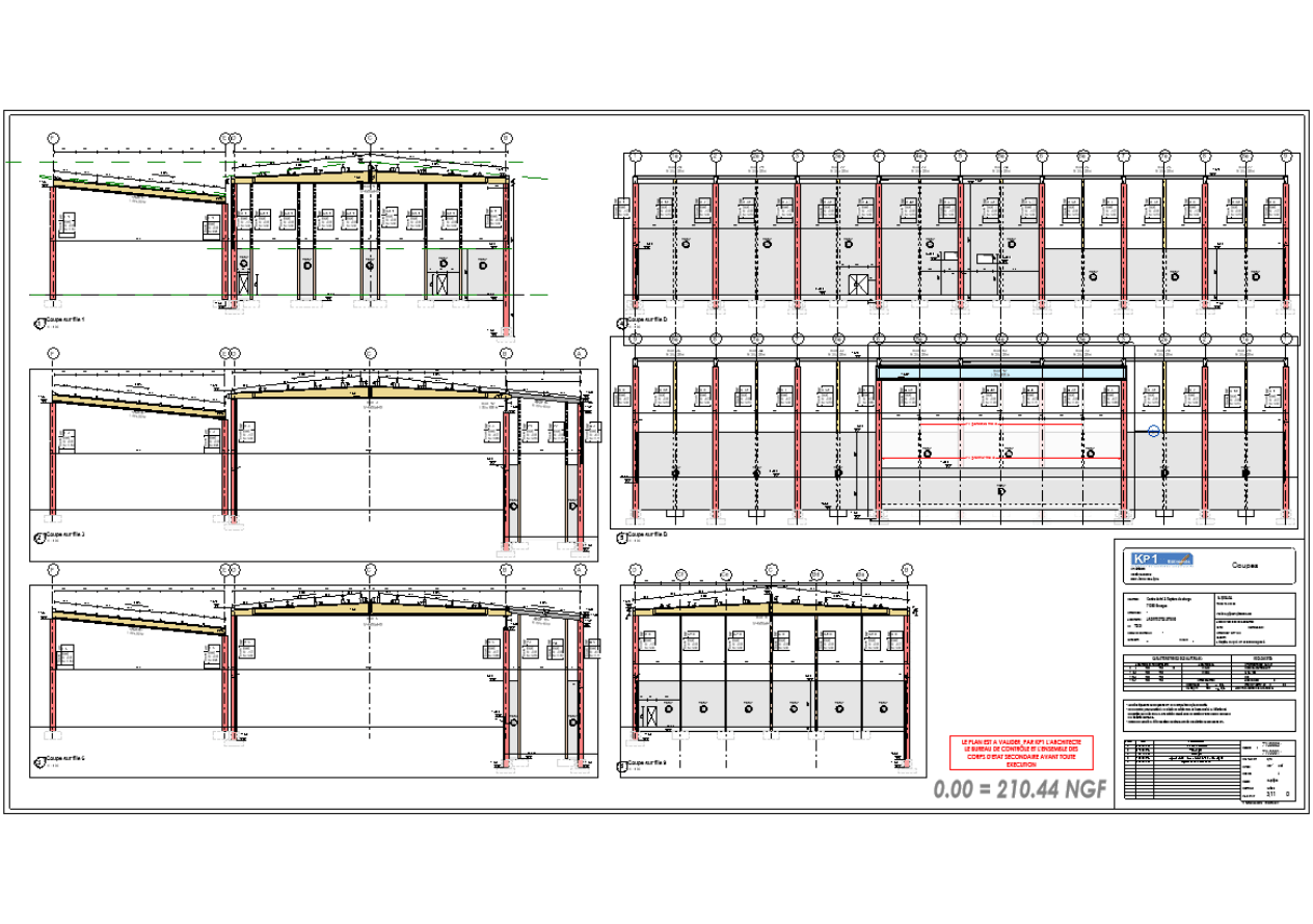
Industrie & Charpente

Bâtiment industriel

Exécution

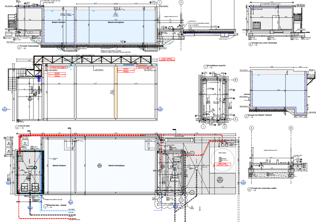
Bassin de traitement d'eau

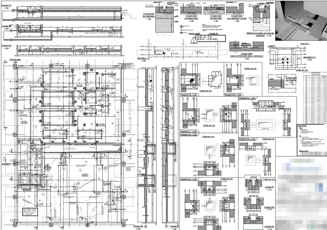
Exécution

centre de recyclage

Exécution

Charpente béton

Exécution